- Home
- Luxury real estate
- Incredible Luxury Villa with sea viewsProperty ID: F0266
- €3,490,000.00
Incredible Luxury Villa with sea viewsProperty ID: F0266
Description
Incredible Luxury Villa with sea views, two thousand meters from the Arenal Beach, in Javea.
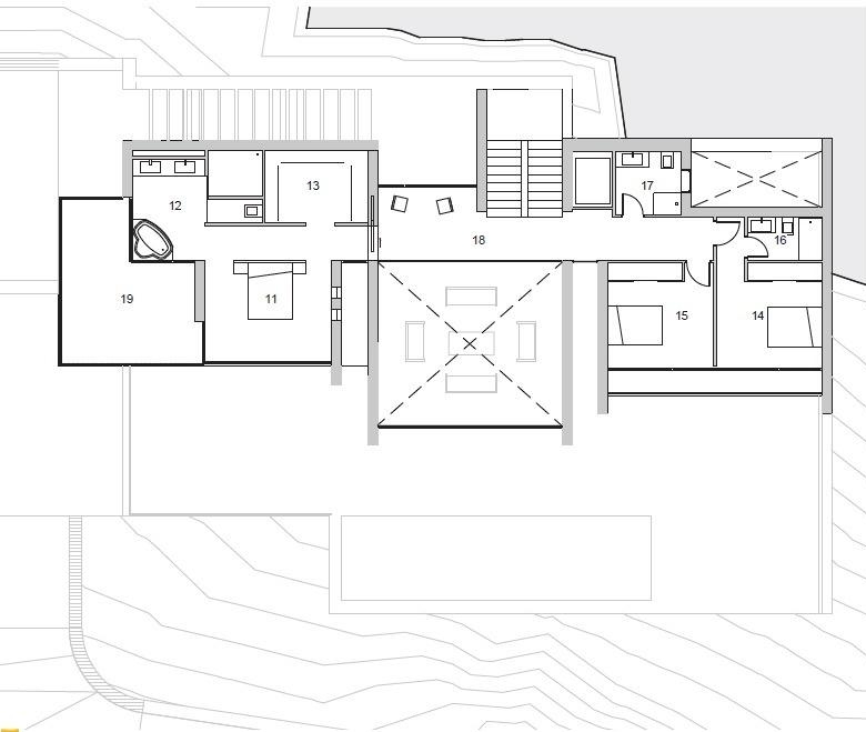
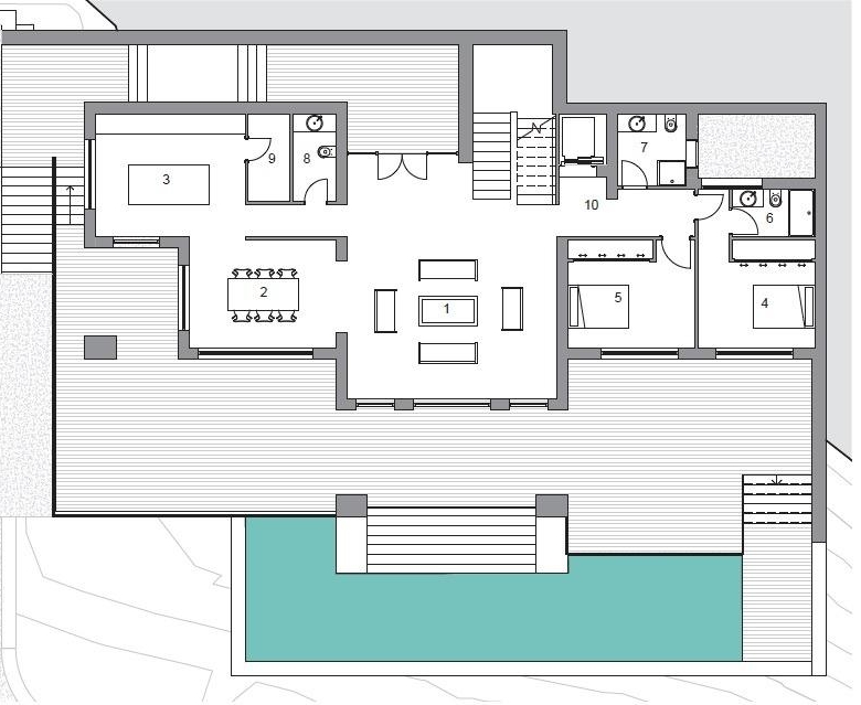
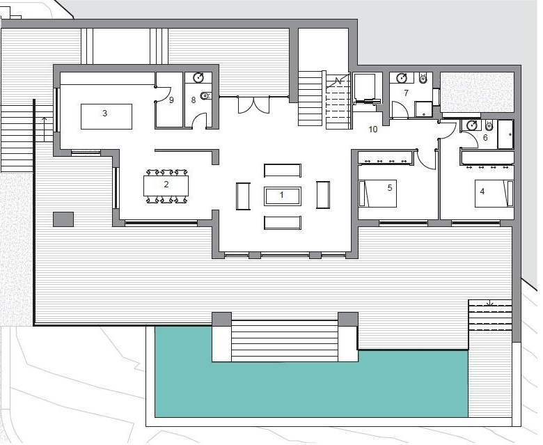
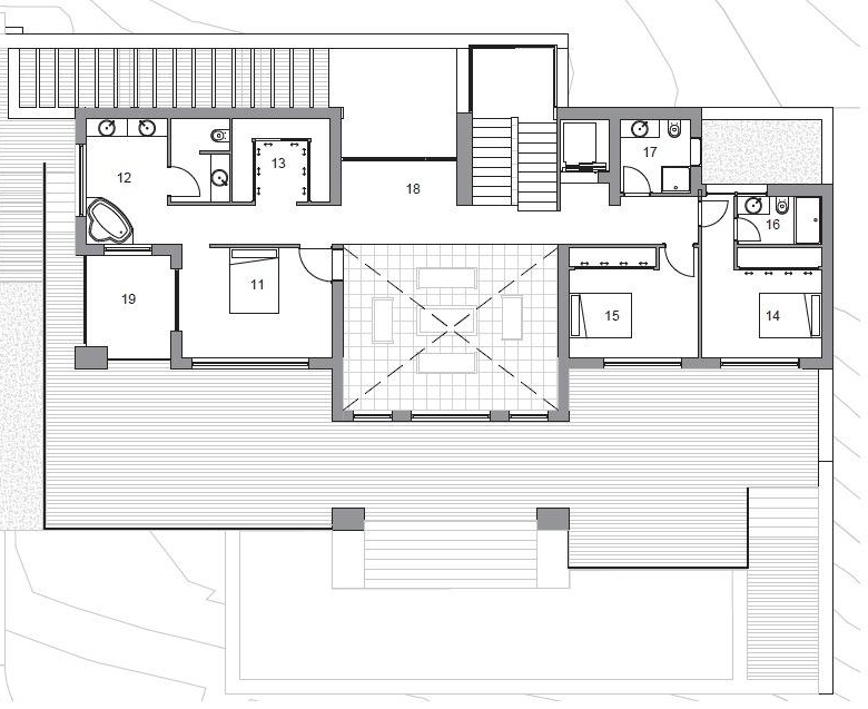
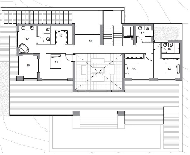
Divided into 3 floors, it includes 5 bedrooms, 5 bathrooms, living room, dining room, independent equipped kitchen, dressing room, laundry room, multipurpose room, gym, underground garage for 2 cars, heated pool, garden.
All of it built with excellent qualities and equipment. The house is in the project/construction period, so now there are many possibilities for customization.
Two design options. Modern design included in the price. Optional classic design with additional price. See images.
Located just two thousand meters from the sea, well connected by road to the city of Javea, with all the necessary services and shops.
Summary of Qualities:
- Unique exterior and interior design
- Energy efficient, environmentally friendly and HQ soundproofing
- Designer kitchen (fully equipped with Bosch / Siemens appliances and Silestone countertop)
- Design Bathrooms (fully equipped)
- Low consumption underfloor heating (with Daikin Altherma heat pump)
- Air Conditioning Low Consumption Daikin Inverter (Cold & Heat)
- Complete with built-in LED lighting and brand electrical mechanisms
- Internal alarm system
- Top-quality large-format porcelain stoneware floor and wall tiles
- Extra tall interior doors and fully equipped closets
- Color Aluminum Windows and Doors (CORTIZO) with double security glazing, electric shutters in bedrooms and mosquito nets on windows.
- Interior frameless glass railings on stairs
- Lap style pool and shower
- Terrace with HQ Non-slip Large Format Porcelain Stoneware Paving
- Frameless glass railings
- Completely paved road around the villa
- Paving stones Driveway and parking
- Automatic access doors for vehicles and pedestrians with video intercom
- Natural Stone Retaining Walls
- Enclosure walls plot
- External alarm system
- Video surveillance system
- LED luminaires
- Native landscaping, including irrigation system and gravel
Documents
Details
Energy Class
-
Energetic class: G
-
Energy performance of the building: G
- A+
- A
- B
- C
- D
- E
- F
- 0 | Energy class GG
- H
Property Location
Features
Request Information
Floor Plans
Mortgage Calculator
-
Down Payment
-
Loan Amount
-
Monthly Mortgage Payment
-
Property Tax
-
Home Insurance
-
PMI
-
Monthly HOA Fees
Similar Homes
Villas in Benitachell – Ref 24892Property ID: 24892
- €2,650,000.00
- Beds: 3
- Baths: 4
- 215 m²
- Villas
Apartamento in Benitachell – Ref PG071Property ID: PG071
- €519,000.00
- Beds: 3
- Baths: 2
- 105 m²
- Apartamento
Apartamento in Benitachell – Ref PG069Property ID: PG069
- €520,000.00
- Beds: 3
- Baths: 2
- 105 m²
- Apartamento
Apartamento in Benitachell – Ref PG067Property ID: PG067
- €612,000.00
- Beds: 3
- Baths: 2
- 117 m²
- Apartamento